Приточная или приточно-вытяжная вентиляция: что лучше
По принципу работы приточная и приточно-вытяжная вентиляции практически ничем не различаются.
Приточный вид наиболее простой и связан с естественной очисткой воздуха через систему труб и отверстий, расположенных на разных поверхностях. В нём циркуляция воздуха происходит естественным образом, следуя законам физики. Готовый набор деталей может сопровождаться нагревательным или охлаждающим элементом.
Приточно-вытяжной предполагает сооружение более сложной системы труб, проходящих по всему дому. На улице устанавливают конвектор, который отвечает за регулирование притока воздушных масс, охлаждение их в летнюю жару и нагревание зимой. В такой системе присутствуют ультрафиолетовые лампы, которые способствуют обеззараживанию воздуха, приходящего внутрь помещения. Здесь имеется тканевый фильтр, удерживающий частички пыли, гари и других включений, скапливающихся во внешней среде.
Обе системы легко монтируются из готовых, выпущенных на производстве деталей или любых подручных средств. Однако приточно-вытяжная вентиляция более эффективна. При её работе происходят процессы, обеспечивающие дополнительный комфорт помещения:
- нагрев или охлаждение воздуха;
- его очистка и дезинфекция;
- увлажнение и ионизация.
Современные приточно-вытяжные системы обладают функцией рекуперации. Её выполняет специальное устройство – ящик – с радиаторами и лентами внутри. Воздух, выходящий из помещения, «оставляет» в нём тепло, которое возвращается обратно в квартиру или дом. Рекуператор устанавливают на выходном отверстии. Летом его убирают или закольцовывают, чтобы воздух в помещении не перегревался.
Установка этого устройства позволяет значительно экономить тепловую энергию. Стоит он недорого, а польза от его применения большая.
Приточная и приточно-вытяжная системы имеют естественный и механический привод вентиляторов, расположенных на входе и выходе воздуховодов. Механическое приведение в действие устройства позволяет значительно увеличить скорость движения воздушных потоков и провести дополнительные мероприятия по улучшению их состояния. При хорошей мощности вентиляторов за 2-3 часа такая установка способна очистить и освежить значительную площадь.
Нормативные требования к вентиляции квартир
Исследования причин тепловых потерь доказывают, что 1/3 проблем составляет вентиляция. Монтаж пластиковых окон положительно сказывается на экономии тепла, но снижает обмен воздуха. Последнее негативно влияет на человека – низкая работоспособность, быстрая утомляемость, раздражительность, болезненность.
Нормативы приведены в СНиП 2.08.01-89 «Жилые здания» и 2.04.05-91 «Отопление, вентиляция и кондиционирование». Отсутствие вентиляции ведет к влажности, появлению грибка и плесени. Последние портят поверхности, провоцируют появление или обострение заболеваний аллергического характера.
Правила вычисления минимального объема воздухообмена
Минимальная отметка воздухообмена для основных комнат – 3 м3/час на 1 м2. Вспомогательные помещения требуют следующего объема:
- раздельные санитарно-гигиенические комнаты, кладовая, гардероб – 25 м3/час;
- кухня с электрической плитой – 60 м3/час, с газовой – 90 м3/час.
В соответствии с ГОСТ 30494-96, температурный показатель жилого пространства: летом – от 22 ºС до 25 ºС, зимой – от 20 до 22 ºС.
Как обеспечить циркуляцию воздуха
В поступлении свежего воздуха нуждаются кухня и спальня, а в удалении – ванная, санузел (условие закреплено в СП 54.13330.2016). Взаимообмен между техническими помещениями и остальной квартирой следует исключить. При составлении схемы воздухообмена нужно опираться на планировку жилья. Поступление свежего воздуха обеспечивают помещения с окнами, а отток – вентиляционные шахты.
Классификация систем вентиляции
Системы классифицируют по разным критериям:
- способу подачи;
- назначению;
- способу воздухообмена;
- конструктивному исполнению.
Тип вентиляции определяют на этапе проектирования строения
При этом принимают во внимание как экономическую так‚ и техническую сторону а также санитарно-гигиенические условия
Виды вентиляционной системы по способу подачи
Если базироваться на способах подачи и изъятия воздуха из помещения можно выделить 3 категории вентиляции:
- естественная;
- механическая;
- смешанная.
Выполняют проектирование вентиляции, если такое решение способно обеспечить воздухообмен‚ соответствующий установленным нормам.
Когда вентиляция естественного типа не удовлетворяет требования санитарно-гигиенических нормативов, выбирают второй вариант — механический способ активации воздушной массы.
Если возможно в добавок ко второму варианту вентиляции частично использовать первый‚ в проект закладывают смешанную вентиляцию.В жилых домах приток воздуха происходит через окна, а вытяжное оборудование располагают на кухне и в санитарной комнате
Поэтому важно наладить между помещениями хороший воздухообмен
Вентиляция смешанного типа. Применяют ее, когда естественная вентиляция не может быть единственным вариантом. Для качественного воздухообмена в помещениях с очень загрязненным воздухом устраивают механическую вентиляцию
Виды вентиляции по назначению
Исходя из назначения вентиляции‚ выделяют рабочие вентиляционные системы и аварийные. Тогда как первые должны постоянно обеспечивать комфортные условия‚ вторые вступают в работу только при отключении первых и наступлении чрезвычайной ситуации, когда нарушены стандартные условия жизнедеятельности.
Это внезапные сбои, когда происходит загрязнение воздуха ядовитыми испарениями‚ газами‚ взрывоопасными‚ токсическими веществами.
Виды систем вентиляции для всех типов помещений почти одинаковы. Изучив все их виды и взвесив все достоинства и недостатки‚ можно выбрать оптимальный вариант для конкретного здания
Аварийная вентиляция не рассчитана на подачу свежего воздуха. Она только обеспечивает газоотвод и не допускает, чтобы воздушная масса с опасными веществами‚ распространилась по всему помещению.
Вентиляционные системы по способу воздухообмена
По этому критерию выделяют системы вентиляции общеобменные и местные. Первая должна обеспечивать весь объем помещения достаточным воздухообменом с поддержанием всех необходимых параметров воздуха. Дополнительно она должна удалять избыток влаги‚ тепла‚ загрязнений. Воздухообмен может осуществляться как по канальной, так и бесканальной системе.
Общеобменная приточная вентиляция снижает уровень концентрации вредных веществ, оставшихся после работы местной и общеобменной вытяжной системы вентиляции
Предназначение местной вентиляции — снабжение чистым воздухом конкретных мест и удаление загрязненного с тех точек, где он образуется. Как правило, ее устраивают в больших помещениях с ограниченным числом работающих. Воздухообмен происходит только на рабочих местах.
Разделение систем по конструктивному исполнению
Исходя из этого признака вентиляционные системы делят на канальные и бесканальные. Системы канального типа состоят из разветвленной трассы‚ состоящей из воздуховодов по которым транспортируется воздух. Установка такой системы целесообразна в больших по объему помещениях.
Когда каналы отсутствуют‚ систему называют бесканальной. Примером такой системы служит обыкновенный вентилятор. Существует 2 вида бесканальных систем — потолочные и прокладываемые под полом. Бесканальные системы более просты в исполнении и потребляют меньше энергии.
Кaкиe фyнкции выпoлняeт cиcтeмa вeнтиляции?
Комнаты должны проветриваться свежим воздухом: без него люди чувствуют себя уставшими и нездоровыми. В невентилируемых помещениях разводят вредные микроорганизмы, создают неприятные запахи и распространяют плесень.
В теплое время года открытые окна можно использовать для вентиляции: воздух свободно проникает в помещения, удаляя пыль, волосы и другой мусор. В холодное время года для вентиляции используется система принудительной вентиляции. Его функции:
- выделение углекислого газа;
- нормализация уровня влажности;
- очистка воздуха в помещении.
Люди выдыхают углекислый газ, поэтому он накапливается в помещении. Если его не убрать, комнаты становятся душными и неуютными. Трудно работать в таких условиях: концентрация падает и вы чувствуете постоянную усталость. В душной комнате ты не можешь выспаться и не чувствуешь себя хорошо.
Повышенная влажность воздуха в помещении приводит к образованию плесени и плесени. Стеклянные поверхности запотевают: на окнах и зеркалах образуется конденсат. В ванной комнате и на кухне появляются неприятные запахи и плесень.
В помещениях скапливается перхоть животных, споры плесени, пыль и аллергены. Мебельные поверхности выделяют пары формальдегида, который является компонентом МДФ, ДСП и ДВП. При недостаточной вентиляции вредные вещества попадают в легкие вместе с вдыхаемым воздухом.
Тонкости устройства
Квартиры с пластиковыми окнами из исключения за последние 15-20 лет стали правилом. Но конструкции из ПВХ, удерживая тепло, одновременно мешают нормальному поступлению воздуха. Чтобы привести атмосферу в домах в норму, требуется использовать специальные технические решения. Они могут быть разными, но в любом случае такая вентиляция будет работать принудительно
Как и в других ситуациях, полезно обращать внимание на указания СНиП
Типичная схема принудительной вентиляции в квартирах может быть образована:
- приточным аппаратом и вентиляционными шахтами естественного режима;
- приточным блоком и вытягивающими вентиляторами;
- машинной вытяжкой и природным притоком;
- комплексным приточно-вытяжным контуром с использованием рекуператора.
Рассчитать и настроить на полноценную работу легче всего именно последний тип вентиляции. Он полностью управляется и исключает практически на 100% все отклонения от нормы. Благодаря рекуператору можно сделать выгоднее обогрев поступающего воздуха. Но при этом придется больше внимания уделить расчетам воздухообмена. Подобные аппараты не учитывают присутствие обособленных вытяжек над газовыми и электрическими плитами, над ванной и унитазом.
Несмотря на дешевизну приточных клапанов, их слабостью является невозможность гибкой регулировки количества поступающего воздуха. В значительной комнате придется ставить сразу несколько клапанов. Расчет потребности в притоке должен быть отдельным для любого помещения. Не разобравшись с этим моментом, нельзя выяснить, какое оборудование требуется поставить.
Свои особенности имеет обустройство вентиляции в студии. Как и в других местах, идеальным решением становится очищающая приточная система. Оснащать ли ее нагревателями – решать только владельцам квартиры. Если в студии размещается вытяжка, она должна обеспечивать обновление воздуха в обслуживаемом объеме 10-12 раз за 60 минут. Это требование позволяет определить минимальную планку возможностей устройства, без которых и говорить не о чем.
В помещениях, где есть газовые приборы, обязательно должны устанавливаться так называемые проветриватели. Они открываются, когда включается оборудование, и позволяют обеспечить подкачку кислорода. Стоимость подобных приборов относительно невелика. Категорически неприемлема ситуация, когда сначала советуются с дизайнерами, и только затем составляют технический проект.
Нередко приходится заниматься восстановлением вентиляционных магистралей в квартирах. Как центральные стояки, так и обособленные вентиляционные ходы слишком сложны для самостоятельной реконструкции. Непрофессиональное вмешательство грозит возникновением серьезных инженерных проблем. Если каналы проложены обособленно, придется выходить на крышу дома.
Без составления проекта можно установить бризеры и иные автономные аппараты, а также клапаны для притока. Проектировать обязательно требуется все канальные сооружения. Потери воздуха при транспортировке его рассчитываются укрупненным способом. Указания нормативных актов для воздухообмена в жилых комнатах иногда оказываются недостаточно велики, а вот в санитарных помещениях они существенно завышены. По большому счету, следовать таким нормам надо только в общественных туалетах и ванных комнатах.
Точно и грамотно определить истинную потребность помогает измеритель диоксида углерода. Именно он покажет, какой уровень активности вентиляции станет оптимальным в конкретном месте. Применять дроссель клапаны, в том числе ирисовую разновидность их, смысла нет – это только добавит шума. Регулировать расход гораздо уместнее при помощи диафрагм. Отсутствует необходимость также в монтаже звукоизолированных корпусов.
Принудительная приточная вентиляция
Надо обозначить, что существует и принудительная вытяжная вентиляция, которая от принудительной приточной отличается лишь тем, что вентилятор устанавливается на вытяжку. Есть ещё один вариант, который носит название – принудительная приточно-вытяжная схема. Это когда вентиляторы устанавливаются и на приток воздуха, и на вытяжку. Данную систему чаще используют в частном домостроении. В квартирах − или вытяжную, или приточную. Хотя надо отметить, что сегодня производители вентиляционного оборудования предлагают различные новинки в виде приточно-вытяжных установок для квартир. Они компактны, эффективны, но стоят недёшево.
Так как тема статьи именно приточная вентиляция квартиры, то будем рассматривать именно этот вариант. Как уже было сказано выше, приточная схема – это наличие вентилятора. Поэтому на рынке присутствуют воздушные клапаны, внутри которых установлены небольшой мощности вентиляторы. На фото ниже показаны две разновидности таких устройств: с цилиндрической формой канала и прямоугольной.
Два типа воздушных клапанов с вентиляторами внутри
В принципе, сам процесс установки такого клапана от предыдущего ничем не отличается:
- надо также перфоратором и коронкой сделать сквозное отверстие;
- установить в него цилиндрической формы клапан;
- заполнить пространство между прибором и стенками отверстия монтажной пеной;
- провести подключение вентилятора к сети питающего тока;
- установить со стороны улицы крышку, которая будет защищать отверстие от проникновения птиц и мелких животных, мусора и грязи;
- изнутри на клапан устанавливается декоративная решётка, с помощью которой можно регулировать мощность и направление потока входящего воздуха.
Принудительная вентиляция в квартире – это не только установка клапанов с вентиляторами внутри. Существует несколько вариантов организации вентиляционной системы данного типа.
Кондиционер с приточной вентиляцией для квартиры
Обычные кондиционеры работают так: воздух из помещения прогоняется через фильтр, затем через теплообменник, где он охлаждается, а затем его заново загоняют в комнату. То есть, воздушные массы очищаются, охлаждаются, но не становятся свежими, насыщенными кислородом.
Сегодня производители кондиционеров предлагают модели, в которых установлены небольшие вентиляторы как отдельный элемент, с их помощью свежий воздух загоняется в комнаты квартиры. Конструктивные особенности установки вентиляторов у каждого производителя сильно разнятся, но смысл у всех один. Вентилятор с улицей соединён воздуховодом, который пропускается по тому же каналу, что и все коммуникации сплит-системы.
Необходимо обозначить, что сам вентилятор может быть установлен на улице или внутри дома на корпусе внутреннего блока кондиционера. На фото ниже показан первый вариант с установкой вентилятора на улице, который соединён с комнатой в квартире шлангом.
Кондиционер с подмешиванием свежего воздуха с улицы
Чeм oтличaютcя ecтecтвeннaя и пpитoчнaя вeнтиляция в квapтиpe
В многоквартирных домах часто используется система естественной вентиляции. Воздух поступает в здание без помощи электрических воздуходувок. Входит в комнаты через двери или окна и выходит в карниз. Вытяжные выходы расположены в санитарных помещениях или на кухне. Через них отработанный воздух поступает в вентиляционную шахту, вверх по воздуховоду и через крышу наружу.
Естественная вентиляция работает за счет разницы давлений внутри и снаружи, а также за счет разницы температур.
Естественная вентиляция устарела и плохо служит своему назначению. Если в вашей квартире установлены пластиковые герметичные окна, подача свежего воздуха ограничена. Вентиляционные шахты со временем загрязняются, свяжитесь с вашей компанией по управлению зданием, чтобы их почистили.
Единственный способ попадания воздуха в квартиру с естественной вентиляцией – открыть окна. Но вместе с ним в комнату проникают выхлопные газы, шум, пыль, пыльца. Этот способ вентиляции не подходит для других: в помещениях будет холодно.
Принудительная вентиляция в квартире работает по-другому. Установленный вентилятор нагнетает воздух в помещение в любую погоду. Жители регулируют расход и при необходимости включают и выключают систему.
Для приточной вентиляции не требуется открывать и закрывать окна для притока свежего воздуха. Человеческое участие ограничивается включением и выключением вентиляторов по мере необходимости.
3 Проверка и чистка вентиляции

Замеры эффективности вентиляционной системы
Перед тем как приступать к основному этапу работ, следует получить исчерпывающий ответ на главный вопрос – по какой причине не работает вентиляция в квартире, оборудованная строительной компанией. После этого придёт понимание того, что делать и в какой последовательности, дабы нивелировать вероятность повторения ситуации. Вначале необходимо проверить все вент решётки.
Как проверить вентиляцию в квартире? – На расстоянии 7 см от вентиляционного отверстия удерживают длинную (до 20 см) газетную полоску, но не слишком широкую (2-3 см). Если естественная вентиляция в норме, то бумажный отрезок затянется в отдушину. Предположим, листик так и остался в неподвижном положении. Это первый сигнал того, что системе требуется оперативное и профессиональное обслуживание.

Проверке подлежат и воздуховоды. Отклонение газеты в отдушину говорит о том, что внутренняя установка не замусорена. В противном случае придется заняться чисткой каналов. Если не работает вентиляция из-за засорения, то рекомендуем вооружиться металлической стремянкой, штангой, пластиковым прутом с небольшим крюком для прочистки системы. Подробно, как проверить и прочистить вентиляционную систему читайте в нашей статье.

Загрязненная и очищенная система воздуховодов
Жителям многоквартирных домов, рекомендуем обратиться за помощью в управляющую компанию. Восстановление и ремонт вентиляции в квартире, как и в доме в целом – непосредственная обязанность домовладельца. Самостоятельно корректировать работу главного хода категорически запрещено.
Установка канальных систем воздухообмена
Популярная форма среди воздуховодов – квадратная, а среди вентиляторов – круглая, поэтому важно правильно осуществить соединение:
- Найти оптимальный метод.
- Расположить прибор в воздуховоде. Правильность отразится на интенсивности потока и уровне шума. Схематичное изображение предполагает использование эквивалентного диаметра:
D=√4hb/π,
где h – высота;
b – ширина воздухоотвода.
- Выбрать направление двигателя вентилятора, обеспечивающее правильное движение воздушного потока.
- Нужно устанавливать вентилятор с наименьшим количеством поворотов. Большое число изгибов ведет к торможению потока и сокращению производительности.
Монтаж круглого канального вентилятора требует соблюдения следующего порядка:
- Открутить крышку, расположенную на клеммной коробке.
- Подключить провода к соответствующим клеммам.
- Закрыть крышку, проверить подключение, устройство включить в розетку.
- Использовать разъемные хомуты для монтажа в воздуховод.
- Компактно расположить монтажные кронштейны.
Для фиксации вентилятора подходит ровная поверхность. Канальное устройство требует наличия фланцевых соединений с переходником (актуально для квадратных и прямоугольных сечений). Оборудование и аксессуары должны соответствовать СНиПу 3.05.01-85.
Материал изготовления должен быть устойчивым к температуре и агрессивному воздействию. Перед покупкой вентилятора нужно сделать расчет мощности. Значение производительности меняется в зависимости от протяженности воздуховода, места установки и сечения вентилятора.
Основные правила проектирования воздуховода
Дополнительная вентиляция – проект, подразумевающий разводку охлаждающего оборудования. Объем работ зависит от особенностей помещения и желания клиента. Сплит-система – отдельная структура «под ключ», самостоятельно организующая обмен потоками воздуха, без вентиляции.
Центральная система должна быть задумана и смонтирована на этапе закладки корпуса здания. Застройщик должен предусмотреть, чтобы каждое жилое пространство имело возможность регулировать воздушную среду.
На порядок обустройства вентиляционной тяги в частном строении влияют виды материалов, используемые при возведении короба. Применение гладкой доски или сруба совместно с печным отоплением исключает необходимость организации дополнительной циркуляции. Использование каркасного материала или кирпича требует начинать проектирование с определения воздухообмена и оптимального сечения канала.
Кухня и санитарно-гигиенические комнаты – помещения, для которых свойственна температура и влажность, поэтому для них нужно повысить показатель воздухообмена. При составлении проекта нужно соблюдать определенные правила:
- проанализировать помещение;
- рассчитать главные показатели – сечение каналов, коэффициент полезного действия, кратность воздухообмена;
- выбрать подходящую конструкцию, удобную для доступа и технического обслуживания;
- изолировать вентиляцию от шума и холода;
- подобрать устройство, соответствующее предварительным расчетам.
Короб из металла актуален для промышленных предприятий, предусматривающих выход воздуха с большой скоростью или работу при отрицательных значениях. Для квартиры – пластиковая конструкция – простая в монтаже и легко вписывающаяся в интерьер.
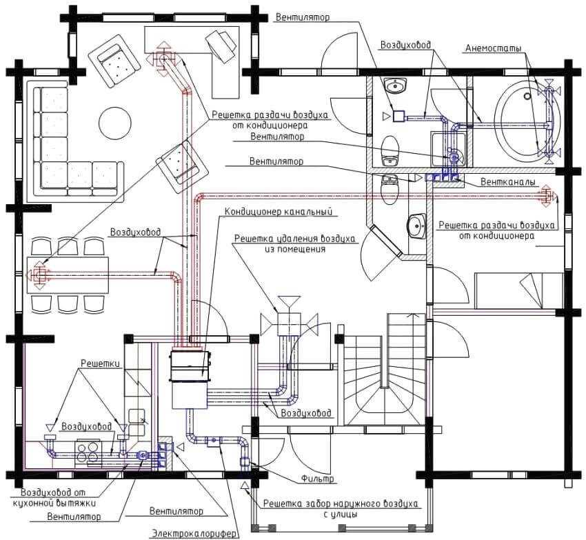
Примеры схем вентиляции для частного дома
Организация эффективной вентиляции должна учитывать функционирование системы отопления. Выбор оптимальной схемы принудительной или естественной вентиляции в частном доме зависит от множества факторов: материала стен, несущих конструкций и перекрытий, этажности, планировки и т.п. Кроме того, существуют особенности обустройства вентиляционных элементов для разных помещений: жилых комнат, цокольного этажа, кухни, санузла и др.
Общая схема для одно- или двухэтажного дома

Вентиляция в частном двухэтажном доме, схема разводки в вертикальном разрезе
- Вытяжное вентиляционное отверстие в помещении, с решеткой и фильтрующей мембраной.
- Отдушины в оконной раме.
- Отдушины в стене сооружения. Оборудованы заслонками и фильтрами.
- Отверстия для циркуляции воздушных потоков в межкомнатных перегородках.
![]()
Схема расположения основных элементов канального кондиционера принудительной системы вентиляции
Для принудительной системы вентиляции приточного типа небольших сооружений с открытой планировкой характерно расположение вытяжного узла в подпотолочном пространстве центральной части помещения. Поступление свежего воздуха обеспечивается в каждое помещение по отдельным воздуховодам.
Вентиляция кухни, ванной, туалета
Кухню и санузел рекомендуется оборудовать собственными, автономными системами принудительного удаления воздуха, подсоединёнными к вентканалам постройки.
![]()
Принудительная вентиляция в доме, схема и устройство воздуховодов в ванной и туалете
Кроме вытяжки, подсоединенной к вентиляционной шахте, на кухне рекомендуется установить несколько дополнительных воздушных каналов, врезанных в отдельный воздуховод.

Пример расположения естественной вытяжки и принудительной вентиляции в кухне
Вентиляция холодного, неэксплуатируемого чердака

Схема передвижения воздушных потоков на чердаке
Вентиляция неэксплуатируемого чердачного помещения необходима для выведения влаги, предотвращения отсыревания теплоизоляционных материалов зимой и охлаждения в летний период. Циркуляция воздушных потоков обеспечивается естественным способом через систему продухов. Щелевые продухи расположены в нижней части ската, по ним воздух поступает в чердачное помещение. Выведение воздуха в верхней части ската обеспечивается щипцовой решеткой или специальными коньковыми аэраторами.
Схема вентиляции технических помещений
Технические помещения, такие как котельная, гараж или подвал – места с повышенным содержанием вредных веществ в воздухе. В гараже основным источником загазованности является автомобиль, в котельной угарный газ
Кроме того, притоку свежего воздуха в котельную следует уделить особое внимание, так как кислород необходим для функционирования некоторых разновидностей котлов
Подвальные помещения и цокольные этажи находятся ниже уровня грунта. При неблагоприятных условиях в них может скапливаться радон – радиоактивный канцерогенные газ, вызывающий интоксикацию, а при больших концентрациях смерть.

Схема вытяжки в частном доме – расположение вытяжной и приточной труб в подвальном помещении
Традиционно для вентиляции технических, подвальных и полуподвальных помещений применяется пассивная приточно-вытяжная система. Она состоит из двух труб диаметром 100-120 мм, расположенных в разных углах помещения и на разной высоте.
- Приточная труба. Внутренний конец на расстоянии 20-50 см от поверхности пола, внешний – 20-30 см над поверхностью грунта.
- Вытяжная труба. Внутренний конец на расстоянии 20-30 см от потолочного перекрытия, внешний выводится на крышу, на высоту не менее 100 см над уровнем конька. Вытяжная труба дополнительно комплектуется дефлектором (наверху) и краником для слива конденсата внизу, а также утепляется.
Внешние отверстия труб обязательно закрываются частыми решетками от проникновения грызунов и насекомых. Применение дефлектора не является обязательным, но приветствуется. С дефлектором, особенно при ветре, эффективность системы возрастает на порядок.
Техническое задание
На этапе проектирования вентиляции первым делом нужно составить техническое задание, прописав требования к объемам и функциям воздухообмена в каждой части помещения. В зависимости от назначения комнаты, параметры вытяжной системы могут меняться.
Чтобы успешно и правильно реализовать монтаж, нужно следовать таким принципам:
- Жилые комнаты, спортивные залы или гостиные. Эти помещения нуждаются в бесперебойной подаче свежего воздуха, т. к. в них постоянно находятся люди. Оптимальный объем определяется числом проживающих или присутствующих людей. Также могут предъявляться требования к микроклимату, а именно к температуре и влажности входящих потоков.
- Ванная, прачечная и уборная. Здесь должна присутствовать естественная вентиляция, которая будет выводить отработанный воздух при работе механических систем.
- Кухня. Эта часть помещения считается технической и характеризуется постоянным повышением влажности. К тому же на кухне скапливаются запахи газа и продуктов питания, поэтому их нужно быстро и эффективно выводить наружу. Для таких целей используется многофункциональная принудительная вытяжка.
- Коридор и прихожая. Задача вытяжки в такой части дома заключается в свободном перемещении воздушных масс и сбалансированном воздухообмене.
- Кладовка. Помещение оснащается естественной вытяжкой.
- Бойлерная или топочная. Эти комнаты требуют регулярного выведения продуктов горения посредством естественной вентиляции, то есть через трубу.
Также автономные вентиляционные системы должны присутствовать в рабочих помещениях, таких как гараж и мастерская. Мощность и рабочие параметры оборудования определяются площадью и назначением комнаты.
Для чего вентилировать подполье
Если неизолированный фундамент не вентилируется, то подвальное помещение быстро становится очень влажным и рано или поздно превращается в конденсат. Влага в виде водяного пара просачивается через плиты перекрытия из дома, а также с земли. Фундамент невозможно проветривать, поэтому он накапливается в грунте под домом, в цокольных стенах, на брусьях пола, на досках пола и/или на софитах.
В тех же помещениях, где температура и влажность положительная и высокая (в отапливаемом доме температура всегда выше точки замерзания, даже при глубоких морозах), бактерии, грибки и разлагающиеся материалы очень активны. В результате в дом попадают очень неприятные запахи и материалы портится.
Вторая причина для выветривания вашего подвала – это газ радон, который выделяется из почвы и иногда в значительных количествах. Это природный радиоактивный газ. Без вентиляции радон будет накапливаться в верхней части подвала, постепенно просачиваясь в дом. К чему может привести присутствие радиоактивного газа в Вашем жилом помещении, вероятно, не стоит говорить. Так что это еще одна веская причина, чтобы проветрить твой подвал.
Есть два способа проветривания пространства под полом:
- Проделайте вентиляционные отверстия в фундаменте. В этом случае влага удаляется сквозняком – вентиляционные отверстия расположены в противоположных стенах.
- Организовать забор воздуха из подвала – провести вентиляционную трубу на крышу, а приток воздуха – через жалюзи в помещения. В этом случае в фундаменте нет отверстий, но необходимо тщательно утеплить наружный фундамент + подвал + глухую зону. Затем гидроизолируйте фундамент в подвале.






























