Правильное соединение труб без сварки и резьбы. Методы
Выбор способа определяется типом изделий, которые планируется стыковать. Трубы условно подразделяются на следующие категории:
- жёсткие;
- гибкие.
Первый тип – это чугунные трубы, стальные, трубы из цветных металлов или из ПВХ. Второй тип – изделия из полиэтилена, полипропилена и металлопластика.

Надежное соединение можно получить только в том случае, если фитинги произведены известной фирмой, гарантирующей качество
1. Чтобы соединить две металлические трубы без резьбы и сварки, обычно используются муфты. Они снабжены специальными креплениями и характеризуются высокой прочностью благодаря тому, что изготавливаются из жёстких материалов. Но эти свойства присущи лишь продукции мировых лидеров данного сегмента сантехнического рынка – производителей из Швейцарии, Швеции и Франции. Муфты применяются для стыковки труб из разного материала или разного диаметра.
2. Ещё один вариант соединения труб без сварки и резьбы – использование фланцев. Эти детали оснащаются резиновой прокладкой. Последовательность работ выглядит следующим образом:
- Участок крепления срезается. Срез выполняется строго перпендикулярно продольной оси трубы. Делать фаску на торце не обязательно.
- На срез одевается фланец.
- Затем вставляется резиновая прокладка с таким условием, чтобы она выходила за края среза на 8-10 сантиметров.
- После этого одетый фланец соединяется с ответной частью, смонтированной таким же образом на второй металлической трубе.
Ответ на вопрос, как соединяются металлические трубы без сварки с помощью фланцев, будет неполным без упоминания следующих моментов:
- для одного фланца использовать несколько прокладок не рекомендуется. Это может вызвать уменьшение герметичности;
- чтобы получить герметичный стык, гайки необходимо закручивать не последовательно по окружности, а попарно расположенные диаметрально друг против друга;
- для водопровода используется пропитанная олифой прокладка из тряпичного картона;
- для труб отопления используют прокладку из асбестового картона;
- болты не должны выступать из гаек более чем наполовину;
- внешний диаметр прокладки не должен задевать болты, а внутренний должен немного превышать диаметр самой трубы.

Фланцевый метод соединения незаменим для труб большого диаметра
Узнав, как соединяются две трубы без сварки фланцевым методом, вы сможете правильно обустроить систему канализации и дымоход, а также трубопровод газоснабжения в частном доме.
3. Соединение муфтой Гебо тоже нашло широкое применение. Эта деталь является одной из разновидностей компрессионного фитинга. С её помощью стыковка металлических труб выполняется достаточно быстро, причём без применения каких-либо специальных инструментов. Установка компонентов муфты Гебо на трубу выполняется в такой последовательности:
- Сначала надевается гайка.
- Затем кольца: зажимное, прижимное, уплотняющее.
- Потом надевается муфта до половины, и затягивается гайка.
- Вторая деталь соединяется с фитингом в той же последовательности.
4. Соединить две трубы без резьбы и сварки можно, используя ремонтно-монтажную обойму. Выглядит этот фитинг в виде муфты или тройника, состоящего из двух частей. Стягивание половинок осуществляется болтами.
Необходимо отметить, что основным предназначением ремонтно-монтажных обойм является выполнение временных ремонтов, например, когда появляются трещины. В экстренных случаях, их можно применять и для стыковки труб. Монтаж осуществляется так:
- прежде всего, необходимо добиться абсолютной гладкости поверхности. Для этого участки трубопровода, на которые фитинг будет надеваться, следует очистить от неровностей, сформированных краской или ржавчиной;
- потом на трубу надевается резиновый уплотнитель. Его разрез промазывается силиконовым герметиком.
- далее обе половинки фитинга необходимо надеть на резиновый уплотнитель и стянуть болтами.

Соединительный хомут — это простой способ временно соединить две трубы без сварки
Как видим, данный способ тоже предельно прост. Такой же принцип заложен в соединение с помощью хомута. Единственным отличием является то, что он затягивается не с двух сторон, а только с одной. Однако использование хомутов обеспечивает более надёжное соединение, чем ремонтно-монтажной обоймой.
Соединение при помощи фитингов
Монтажные элементы, применяемые при сборке трубопроводов, различаются по виду и области применения. Виды фитингов:
- прямые предназначены для стыковки двух элементов системы в одной плоскости;
- переходники нужны при соединении заготовок разного диаметра, часто необходимы при ремонте старых трубопроводов;
- поворотные, позволяют менять направление потока;
- торцевые заглушки необходимы при изменении схемы прокладки трубопровода;
- разводные (тройники, крестовины) нужны при врезке в магистральные линии или при монтаже отводов;
- штуцеры – гибкие фитинги, используемые при подключении к запорной арматуре.

Для фитингового соединения без резьбы используют обжимные или компрессионные фитинги. В конструкции предусмотрено уплотняющее кольцо, оно фиксируется регулируемым зажимом. С помощью таких фитингов несложно соединять трубы без сварки. Стык плотно и герметично фиксируется с двух сторон. По прочности такое соединение превосходит сварочный шов. Фитинги используют при монтаже труб в технологических системах, где создается высокое давление. Их применяют при разводке водопровода, монтаже теплосистем. Специального оборудования для фиксации фитингов не требуется. Их выпускают для пластиковых и металлических труб.
Технология монтажа
При установке труб с помощью цанговых фитингов требуется зафиксировать цангу во внутреннюю часть конструкции. Наружная гайка привинчивается посредством разводного ключа. Таким образом, достигается оптимальный уровень герметичности конструкции. Те же действия производятся со второй частью конструкции.

Следует помнить, что данные элементы оказывают немалое давление на конструкцию. По этой причине, если производится установка труб из пластика, следует контролировать уровень зажима. При излишнем применении силы конструкция может сильно деформироваться. По этой причине необходимо стараться регулировать свои усилия, не допуская возникновения трещин на изделии. Если вы желаете подробней узнать об особенностях этих обжимных устройств и специфике их монтажа, вы всегда можете посмотреть фото на эту тематику.
Преимущества
Цанговые фитинги появились на рынке относительно недавно, однако они быстро завоевали внимание потребительской аудитории. И это не удивительно, ведь отличает их ряд важных преимуществ:
- Демократичная стоимость;
- Возможность найти элементы в каждом магазине соответствующего профиля;
- Простота в установке;
- Герметичность, качество и надежность соединений;
- Долговечность;
- Возможность вторичного использования, что позволяет использовать элементы в конструкциях, которые планируется, по истечении некоторого срока времени, разобрать.

Однако у цанговых фитингов есть и недостатки. В частности, это постепенно ослабевание зажима. По этой причине такие соединения требуют регулярного затягивания
При установке труб важно не забыть об обеспечении беспрепятственного доступа к соединениям. Важно также помнить, что конструкции с такими соединениями нельзя прокладывать в стенах
Это сокращает широту их использования, но не значительно
Это сокращает широту их использования, но не значительно.

Если вас интересуют цанговые фитинги для труб, на нашем сайте вы можете посмотреть их фото, изображения с готовыми соединениями. Приобретать ли эти соединительные элементы или подумать о других вариантах, зависит от конкретной вашей ситуации, специфики монтажа системы, ваших личных предпочтений. Если вы собираетесь устанавливать конструкции самостоятельно, вы сможете оценить простоту работы с данным типом элементов.
цанговый фитинг для труб
Чтобы обеспечить бесперебойное водоснабжение многоквартирных домов, часто применяют трубы из пластика. Популярность они получили, благодаря длительному сроку службы, особой надежности и безопасности в эксплуатации. Помимо того, производить монтаж пластиковых труб довольно просто и быстро, за счет их гибкой конструкции.
Однако, такие трубы, предусматривают соединительное крепление друг с другом, а также с прочим оборудованием для водопроводной системы. Вследствие этого обязательно встанет вопрос: как выбрать наиболее идеальный вариант, чтобы в придачу долго служил и был несложен в монтаже? Ответ прост — таким важным элементом будут цанговые фитинги, проверенные временем и отличающиеся простотой соединительные устройства.
Для медных труб применение цанговых фитингов происходит довольно редко что, требуется, когда нужна определенная гибкость материала.

водорозетка двойная
Трубное соединение
В

данном задании необходимо вычертить одно изображение (главный вид) узла трубного соединения с разрезом в месте соединения. Узел состоит из концевой части трубы и одного из соединительных элементов (фитингов). Пример выполнения задания приведен на рис. 12.
Рис. 12. Трубное соединение
Трубные соединения широко используются при монтаже трубопроводных коммуникаций: водо- и газоснабжение, отопление, канализация и т.п. Данный вид соединения относится к креплению с помощью трубных резьб (при давлении в сети не более 25 атмосфер). В связи с тем, что трубопровод может быть набран по соответствующим расчетам из различных диаметров труб и в различных направлениях, то приходится использовать для соединения различные фасонные элементы (фитинги): угольники, тройники, муфты, кресты.
Если трубопровод на отдельном участке не меняет направления, то трубы соединяют муфтами (рис. 13). На рис. 14 показан угольник, который позволяет соединять трубы одного диаметра под прямым углом.

Рис. 14. Угольник
Рис. 13. Муфта
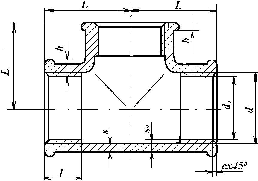
Тройники (рис. 15) используют в том случае, когда трубопровод разветвляется.
![]()
Рис. 15. Тройник
Варианты задания принимаются из табл. 3.
Таблица 3
| Вариант | 1 | 2 | 3 | 4 | 5 | 6 | 7 | 8 | 9 | 10 | 11 | 12 | 13 |
| Муфта
ГОСТ 8955-59 |
Угольник
ГОСТ 8946-59 |
Тройник
ГОСТ 8948-59 |
|||||||||||
| Условный проход DУ, мм | 8 | 10 | 15 | 20 | 25 | 32 | 40 | 20 | 15 | 20 | 25 | 32 | 40 |
Трубная цилиндрическая резьба, в отличие от метрических резьб, имеет профиль в виде равнобедренного треугольника с углом при вершине 55º. Профиль этих резьб обозначается знаком G, а после обозначения профиля проставляется условный размер. Условным этот размер называется потому, что он показывает величину внутреннего диаметра трубы (в дюймах), для которой разработана данная резьба. Один дюйм примерно равен 25,4 мм.
Внутренний диаметр трубы (диаметр «в свету») называют условным проходом и в справочных таблицах обозначают через Dу (мм).
Обозначения трубных резьб наносят над полкой линии выноски.В качестве примера резьба обозначена G 1″. Это означает, что внутренний диаметр трубы равен одному дюйму и соответствует условному проходу Dу25,4мм. Обозначения трубных резьб наносят независимо от того, на наружном диаметре трубы выполнена резьба или на внутреннем. Таким образом, если резьба дана на наружном диаметре трубы, то этот диаметр не будет равен 25,4 мм, а окажется равным 33,25 мм.
В зависимости от выбранного варианта размеры, необходимые для выполнения чертежей фитингов, берутся из таблиц: для муфт – табл. 4; для угольников и тройников – табл. 5.
Таблица 4
| Условный проход DУ, мм | Резьба | d | d1 | L | l | S | h | b | b1 | c |
| 8 | G ¼ ˝ | 13,16 | 11,45 | 27 | 7 | 3,5 | 2 | 3 | 2 | 1 |
| 10 | G ⅜ ˝ | 16,66 | 14,95 | 30 | 8 | 3,5 | 2 | 3 | 2 | 1 |
| 15 | G ½ ˝ | 20,96 | 18,63 | 36 | 9 | 4,2 | 2 | 3,5 | 2 | 1,6 |
| 20 | G ¾ ˝ | 26,44 | 24,12 | 39 | 10,5 | 4,4 | 2,5 | 4 | 2 | 1,6 |
| 25 | G 1 ˝ | 33,25 | 30,29 | 45 | 11 | 5,2 | 2,5 | 4 | 2,5 | 1,6 |
| 32 | G 1¼ ˝ | 41,91 | 38,95 | 50 | 13 | 5,4 | 3 | 4 | 2,5 | 1,6 |
| 40 | G1½ ˝ | 47,80 | 44,85 | 55 | 15 | 5,8 | 3 | 4 | 3 | 1,6 |
Таблица 5
| Условный проход DУ, мм | Резьба | d | d1 | L | l | s | s1 | h | b | c | R ≈ |
| 8 | G ¼ ˝ | 13,16 | 11,45 | 21 | 9 | 2,5 | 3,5 | 2 | 3 | 1 | 12 |
| 10 | G ⅜ ˝ | 16,66 | 14,95 | 25 | 10 | 2,5 | 3,5 | 2 | 3 | 1 | 15 |
| 15 | G ½ ˝ | 20,96 | 18,63 | 28 | 12 | 2,8 | 4,2 | 2 | 3,5 | 1,6 | 16 |
| 20 | G ¾ ˝ | 26,44 | 24,12 | 33 | 13 | 3 | 4,4 | 2,5 | 4 | 1,6 | 20 |
| 25 | G 1 ˝ | 33,25 | 30,29 | 38 | 15 | 3,3 | 5,2 | 2,5 | 4 | 1,6 | 23 |
| 32 | G 1¼ ˝ | 41,91 | 38,95 | 45 | 17 | 3,6 | 5,4 | 3 | 4 | 1,6 | 28 |
| 40 | G1½ ˝ | 47,80 | 44,85 | 50 | 19 | 4 | 5,8 | 3 | 4 | 1,6 | 31 |
При соединении трубы с тройником или муфтой в узел входит контргайка ГОСТ 8961-59 (рис. 16). Угольник навинчивается на всю длину lо нарезной части трубы (до отказа), и контргайка не ставится. Размеры контргаек приведены в табл. 6.

Рис. 16. Контргайка
| Условный проход,мм | 6 | 10 | 15 | 20 | 25 | 32 | 40 |
| Н | 7 | 7,5 | 8 | 9 | 10 | 11 | 12 |
| D | 25,4 | 28 | 36,9 | 41,6 | 53,1 | 63,5 | 69,3 |
Пример выполнения задания приведен на рис. 17.

Рис. 17. Пример выполнения задания № 2
Сварные соединения труб из стали
Очень важно, чтобы в трубопроводе прочность сварных соединений деталей труб была идентична прочности самих труб. Не так часто, но все же допускается использование сварных соединений, прочность которых ниже, чем прочность основного металла
Это возможно, когда технические условия подтверждают прочность используемого сварного соединения.
Иногда в процессе сварки стальных труб на их внутренней поверхности образуются наплывы расплавленного металла. Это не очень хорошо, так как из-за таких образований проходимость трубы снижается, а сопротивление движению вещества, транспортируемого по трубам, увеличивается.
Особенно часто такая проблема возникает при сварке труб небольшого диаметра — от 1 до 3,2 см. Чтобы избежать такого недостатка на трубах, которые эксплуатируются под высоким давлением, их сваривают в раструб.
Виды резьбы
Цилиндрическая резьба по металлу классифицируется по размерам, положению на поверхности, числу заходов и области использования. В производстве выделяют несколько видов резьбы:
- метрическую;
- дюймовую (условные обозначения размеров в дюймах);
- метрическую коническую;
- круглую;
- трапецеидальную;
- упорную.
Данные виды используются в промышленности для соединения деталей различных видов.
Метрическая
Такой вид резьбового профиля применяется для крепежных соединений. В результате соблюдения технических условий ее можно использовать как ходовую. В разрезе резьба имеет вид треугольника с равными боковыми сторонами, угол вершины которого равен 55°. Изготавливается с одним или несколькими заходами для увеличения прочности соединения деталей.
В промышленности выделяют резьбы с размерами от 0,25 мм до 600 мм, при шаге 0,25 мм до 6мм, правого и левого исполнения. Мелкий шаг применяется для тонкостенных поверхностей. В маркировке изделия присутствует буквенное обозначение М, размер, шаг, а также добавляют число заходов и вид исполнения.
Метрическая резьба
Дюймовая
Применяется такой тип резьбы для соединения труб и запорной арматуры. Наносится на металлические поверхности и пластик. Размеры указываются в дюймах, в разрезе имеет вид треугольника с равными сторонами с углом вершины 55°. Впадины и вершины удаляются для предотвращения притирания металла. Размерный ряд начинается от 3/16 до 4 дюймов.
Метрическая коническая
Данный резьбовой профиль наносят на заготовку конического вида по внутренней или внешней поверхности. По техническим условиям угол конусности составляет значение 1:16. Применяется в трубных креплениях для создания повышенной герметичности. На чертежах метрическая коническая резьба маркируется МК, затем указывается значения размера и шага.
Круглая
Круглая резьба используется в трубных крепежах, при соединении кранов, стыков и ответвлений. В документации маркируется Кр, после указаны номинальные размерные значения. В основании и на вершинах производятся округлый профиль с углом 30°.
Трапецеидальная
Резьбу такого вида считают ходовым. Отличается от аналогов свойством самостоятельного торможения. Данная характеристика достигается при вращательном движении гайки по валу, в результате которого появляется повышенное трение. Не требует использования дополнительных элементов для закрепления деталей.
Применяется трапецеидальная резьба для преобразования вращения в поступательное трапецеидальное. Используется в автомобильной технике, промышленном оборудовании, станках, робототехнике. Движение детали на валу проходит плавно без рывков. Номинальные размеры от 8 мм до 640 мм, при шаге от 1,5 мм до 12 мм. На схемах маркируется Тр, а после указываются основные параметры.
Упорная
Используется такой тип резьбового профиля для оборудования, на валах которого наблюдается повышенная осевая нагрузка. В разрезе представляет собой трапецию с расположением рабочей стороны под углом 3°, а другой под углом 30°. Обозначается латинской буквой S.
Упорная резьба
Преимущества метода без сварки и резьбы
Существуют металлические и пластиковые трубы. Зачастую больше всего проблем доставляет стыковка именно металлических.
Соединить их можно совершенно разными способами, а именно:
- При помощи резьбовой муфты;
- Муфтой Гебо;
- Ремонтно-монтажной обоймой.
Перед соединением труб без сварки следует ознакомиться с теорией
Зачастую металлические трубы можно состыковать между собой при помощи резьбового крепления. В таком случае требуется нарезка резьбы. Это достаточно простая процедура, поэтому вполне возможно выполнить ее самостоятельно. Для монтирования готового изделия длина резьбы на одной стороне трубки должна быть в несколько раз больше, чем на другой, чтобы муфта с гайкой сидели идеально. Такое соединение получается долговечным и надежным, однако стоит отметить, что далеко не всегда есть возможность нарезки резьбы.
Можно соединить между собой даже трубы разного диаметра без специальных инструментов. Стоит отметить, что подобный фитинг представлен в виде муфты и тройника. Это дает возможность применять его в случае, если нужно произвести врезку, например, в стояк для выполнения последующей разводки. Надежность монтирования в таком случае зависит от качества выполненной работы.
Можно осуществить соединение при помощи ремонтно-монтажной обоймы, состоящей из двух сторон. Обе половинки затягиваются при помощи специальных болтов. Однако стоит помнить, что подобное приспособление предназначено преимущественно для выполнения временного ремонта, например, при возникновении трещин. Можно также использовать трубный хомут, так как подобное соединение обеспечивает дополнительную надежность, чем при использовании других изделий. Многие специалисты советуют осуществлять соединение профильных металлических труб без сварки.
Отказ от традиционных методик можно обосновать следующими причинами:
- Высокая стоимость выполнения сварочных работ;
- Сложность исполнения;
- Недостаточная мобильность.
Если нужно стыковать только лишь несколько водопроводных труб, то нет надобности применять сварочное оборудование, так как оно достаточно громоздкое. Кроме того, может в доме отсутствовать электроснабжение достаточной мощности.
Для скрепления металлических изделий можно применять специальные фитинги, которые подразделяются на:
- Тройники;
- Отводы и углы;
- Крестовины;
- Муфты;
- Переходники;
- Штуцеры;
- Заглушки.
Широкое распространение имеют фитинги, так как они достаточно простые в монтировании.
Важно! Подобные виды арматуры показывают очень большую результативность при обустройстве трубопроводов. Путем применения фитингов можно монтировать совершенно любую систему, в частности для отопления и подачи горячей воды. Существуют самые различные способы соединения металлических труб, которые являются альтернативой сварке и резьбе
Выбирать их нужно с учетом соблюдения определенных условий. Некоторые из них обязательно требуют наличия специального оборудования, а также навыков
Существуют самые различные способы соединения металлических труб, которые являются альтернативой сварке и резьбе. Выбирать их нужно с учетом соблюдения определенных условий. Некоторые из них обязательно требуют наличия специального оборудования, а также навыков.
Разновидности соединений труб
Вариант соединения труб Соединения трубопровода могут быть разъемные или неразъемные.
К соединениям неразъемного типа относятся:
- Соединения, образованные пайкой;
- Соединения, образованные сваркой;
- Соединения, образованные склеиванием;
- Соединения, образованные прессованием;
- Соединения, образованные бетонированием.
Принцип соединения выбирается с учетом выбора многих факторов:
- Материал, из которого изготовлены детали соединения;
- Условия эксплуатации будущего трубопровода;
- Температура вещества, которое будет транспортироваться посредством труб;
- Давление внутри трубопровода;
- Физические и химические особенности продукта, который будет транспортироваться.
Что такое муфта Гебо
Муфта Гебо — внешний вид
Муфтой Гебо называют одностороннюю муфту, в наличии у которой имеются такие элементы как компрессионные кольца и резьбовое соединение. У двухсторонней муфты Гебо компрессионные кольца расположены с обеих сторон.
Конструкция муфты Гебо
Конструкция муфты Гебо подразумевает наличие специального углубления для резинового уплотнителя, который и создаёт герметичность соединения . Уплотнитель выполнен в форме конуса, что способствует его проникновению даже в самые недоступные щели при затягивании муфты.
Порядок применения муфты Гебо
Чтобы эксплуатационный срок данного изделия был максимально продолжительным, необходимо знать процесс правильного монтажа, при котором сохранится требуемая герметичность соединения металлических труб.
- На обеих трубах следует сделать максимально ровный срез и зачистить его края, избавившись от мелких металлических заусениц. Также удаляется краска или эмаль, до самого металла. Для этого можно использовать мелкую наждачную бумагу или специальный круг для болгарки.
- Первой на трубу одевают гайку, которая идёт в комплекте с муфтой. Далее необходимо разместить на трубе конусообразное кольцо, так, чтобы верхняя часть конуса смотрела на гайку.
- Вторым одевают прижимное кольцо, за которым идёт уплотнитель. Уплотнитель следует развернуть в сторону фитинга.
- Далее следует зажать фитинг так, чтобы при затягивании гайки он не проворачивался. Гайку затянуть так, чтобы осталось 1-2 витка резьбы.
Муфта установлена и следует проверить её на качество, подав воду в систему. При появлении капель жидкости из-под муфты, необходимо немного подтянуть гайку и заново проверить на соединение на герметичность. При повторном появлении влаги, муфту следует снять и повторно зачистить участок под ней.
Основные преимущества муфты Гебо
Муфты Гебо часто используют из-за практичного соотношения ценовой политики и качества изделия. При правильном монтаже, муфта способна прослужить долгие годы, спустя которые достаточно на ней заменить резиновый уплотнительное кольцо и можно заново монтировать на трубопровод.
Также ценится широта применения данного изделия. Как и обыкновенные фитинги, муфта Гебо применяется не только в водопроводах, но и в компрессионных системах. Чтобы выполнить соединение потребуется минимум времени, и при этом не обязательно наличие специального инструмента.
Применение калибров
Пробки со вставками являются главным типом резьбовых пробок, имеют конусный хвостовик. Они изготавливаются диаметром от 1 до 50 мм. Уплотнение резьбовых соединений с внешним диаметром от 50 до 100 мм делают в виде насадок, фиксируемых на концах пластмассовой ручки винтами. Проверку внешней резьбы производят резьбовыми кольцами, изготовленными диаметром от 1 до 100 мм. Проходные кольца нарезаются по всей ширине кольца. Их внешняя поверхность накатывается. Непроходимые кольца обладают укороченной резьбой (оставляют только два три витка с укороченной резьбой). На них создают отличительную проточку посередине внешней накатанной цилиндрической поверхности кольца.
Резьбовые соединения
А что же делать в тех случаях, когда нет возможности провести сварные работы? Способов стыковки элементов трубопровода без использования сварки довольно много. Наиболее популярным вариантом считается резьбовой монтаж. Резьба на трубах выполняется с помощью нарезки на специальных станках или обыкновенной плашкой. При необходимости нанесения резьбы на изделие с тонкими стенками используют способ накатки.
Если соблюдать все правила установки резьбового сочленения, то получится прочная и герметичная конструкция. Рассмотрим основные достоинства использования такого соединения:
- удобство монтажа.
- возможность ремонта или замены без повреждения трубопровода;
- установка производится без использования специального оборудования.
Кроме этого, существует несколько параметров резьбы, которые определяют её эксплуатацию:
- шаг нарезки;
- глубина;
- направление.
Шаг определяет дистанцию между вершиной витка и его основанием. Глубина является параметром, который определяется так: измеряется расстояние между основанием витка и его вершиной. Направление резьбы — важный момент, игнорируя который можно столкнуться с проблемами при монтаже трубопроводной конструкции. У резьбы существует два направления:
- правое;
- левое.

Многие разновидности труб оснащаются резьбой, они применяются там, где нужно создать надежное, но разъемное соединение
Монтаж и герметизация фланцевого соединения
Осуществить монтаж фланца очень легко. Для этого сначала необходимо зачистить соединяемые трубы наждачной бумагой, затем установить фланцевые пластины на торцы труб (для создания надежного фитинга для этой операции можете использовать сварку). Далее ставится уплотнительное кольцо (подкладка) посредине двух трубопроводов. После чего фиксируете полученное соединение с помощью крепежных болтов и гаек.
Главной характеристикой надежности фланцевого фитинга является герметичность. В зависимости от среды соединения и условий эксплуатации для герметизации применяют различные подкладки. Таким образом, для углеводородной среды применяют масло-, бензостойкую резину (ГОСТ 7338-77) или паронит (ГОСТ 481-80); при повышенных температурах (больше 400°С) – теплоустойчивую резину (ГОСТ 7338-77); при агрессивной среде – щелочестойкую или кислотостойкую резину (ГОСТ 7338-77); при нормальных условиях использования – паронит общего назначения или фторопласт (ГОСТ 481-80).
Нарезка резьбы
Если резьба уже нарезана, то выполнить соединение элементов очень просто. Однако в некоторых случаях резьбу приходится нарезать самостоятельно. Чтобы выполнить эту работу потребуется метчик и плашка. Первый инструмент используется для нарезки внутренней резьбы, второй нарезает резьбу на наружной стороне детали. Выбирают инструмент в зависимости от таких параметров:
- материал труб;
- их диаметр;
- тип резьбы, который требуется нарезать.
Для выполнения работы потребуется выполнить следующие операции:
- труба протачивается;
- выполняется базовый проход;
- вкручивается метчик (или накручивается плашка) до получения нужной длины резьбы.
Уплотнение резьбовых соединений труб
Важный момент монтажа резьбовых соединений – обеспечение их полной герметизации, что можно достигнуть несколькими способами.
- Применение фторопластовых, резиновых, нейлоновых уплотнителей.
- Использование подмотки – пеньковой веревки или ленты ФУМ. Второй вариант предпочтительнее, поскольку лента ФУМ способна заполнить все просветы резьбы, что не может обеспечить пеньковая подмотка. Для трубопроводных систем холодного и горячего водоснабжения, а также пара низкого давления совместно с льняными шнурами или волокнами применяются пасты для резьбовых соединений. Такие места стыковки остаются герметичными при температурах до +140°C (данные для паст марки «UNIPAK»).
- Надежный фиксатор резьбовых соединений – анаэробный клей. Это специальное вещество, которое при попадании в узкие пространства металла вступает в реакцию с воздухом и затвердевает. В состав клея входят акриловые полимеры, стабилизаторы, красители, загустители и прочие вещества. Все компоненты этого герметика безвредны для человека, поэтому клей допускается к применению в трубопроводах, предназначенных для питьевой воды. Особенность такого соединения – возможность демонтажа только с помощью нагрева или специального инструмента.
Соединение профильных стальных труб
Профильные изделия чаще всего скрепляют при помощи хомутов и краб-систем.
Таким образом можно состыковать трубы не только одного диаметра, а разных размеров. Система разборная, поэтому представляет определенный интерес в ликвидации аварий и их последствий.
- Стыковка труб водопровода возможно только под углом 90 0 ;
- Диаметр трубопроводов не может быть большим – не более 150 мм.
Вариант соединения на хомуты для соединения между собой узлов и элементов трубной магистрали: соединяемые конструкции могут быть любой сложности – навесы и стеллажи, ограждения и теплицы, вольеры и строительные леса. Быстрые и легкий монтаж, прочное соединение стальных деталей, сравнимое со сваркой, многоразовое использование такого вида крепежа без резьбы и сварки — основные достоинства хомутов.
Разновидности соединений труб на фитингах
Чтобы соединить две трубы без нарезания резьбы и без сварочных работ, используют фитинг. Условия для прочного контакта одно: диаметры труб должны быть одинаковыми. Варианты фитингов: прямые (соединяют трубы одинакового диаметра) и переходные (служат для соединения труб с разными диаметрами).
По функциональному назначению фитинги бывают следующих типов:
- Угловые и отводные. Служат для изменения направления труб отопления, канализации или водопровода под разными углами;
- Фитинги-тройники создают отводы от основного трубопровода;
- Фитинг — муфта на трубу: с его помощью без резьбы и сваривания элементов наращивают длину прямого участка;
- Крестовина предназначена для разделения потока рабочей среды в магистрали на несколько равновеликих потока в разных направлениях;
- Штуцеры служат для соединения металлических труб с гибкими отводными шлангами;
- Футорки, переходники, сгоны и ниппели – ими соединяют трубы разных диаметров;
- Заглушки и колпачки служат для закупоривания отверстий.
Достоинства фитинговых соединений
Промышленная обжимная арматура на пластмассовую, чугунную или стальную трубу бывает прессовой, и имеет в конструкции узла одно или два обжимных кольца, которые крепят одну деталь к другой. Кольца запрессовываются, что при демонтаже соединения или всего трубопровода создает определенные неудобства: такой узел можно только разрезать, но не разобрать. Это – одноразовое крепление. И, хотя это – явный недостаток соединения, его довольно часто используют вместо других решений, так как пресс-фитинговое соединение стальных труб отопления на резьбе является наиболее прочным, а значит – долговечным и надежным. Кроме того, пресс-фитинги можно закреплять в таких местах сложных участков, где другие варианты соединений просто не удастся реализовать.
Достоинства обжимной арматуры:
- Такое безсварное сочленение металлических труб позволяет получить абсолютно герметичный шов, через который рабочая среда в виде газа или жидкости не просочится;
- Высокая степень надежности, приравниваемая к результату сварки, и долговечность эксплуатации такого соединения;
- Пресс-фитинги выдерживают сильные вибрации и механические нагрузки.
На сегодняшний день муфтовые, фитинговые и хомутовые соединения труб и других изделий из металла или пластика используются почти во всех сферах человеческой деятельности, начиная от в метрологии, и заканчивая обслуживанием компрессорного и газотурбинного оборудования в системах с высоким давлением рабочей среды.
Источник






























