Схемы подключения
Также рекомендуем ознакомиться со схемами монтажа автоматического выключателя:
На видео более подробно рассмотрены схемы подключения однополюсного, двухполюсного, трехполюсного и четырехполюсного автомата:
Обзор схем
Вот и все, что хотелось рассказать Вам по поводу данного вопроса. Надеемся, что теперь вы полностью узнали, как самому выполнить подключение автоматического выключателя к сети и каких ошибок не следует допускать.
Наглядная видео инструкция
Установка некачественного однополюсного автомата
Обзор схем
Почему необходимы знания об электрике
Информации об электрических устройствах, известной со школьных уроков физики, для практического применения недостаточно.
Рядовой потребитель чаще сталкивается с автоматическими выключателями, так как именно они срабатывают в связи с сетевыми перегрузками. Недостаточно просто вернуть рычажок в привычное положение, нужно обязательно разобраться в причинах отключения, иначе в ближайшее время ситуация может повториться.

Чтобы ориентироваться в начинке электрощитка (который, кстати, является обязательным элементом энергосистемы частных домов), необходимо знать состав и назначение всех устройств – импульсных реле, выключателей нагрузки, УЗО и т.д.
Нужно ли уметь самостоятельно менять автоматику? Рекомендуем для начала изучить теорию, а при первом же отключении – и практику. Дело в том, что не всегда существует возможность быстрой помощи профессионалов: в выходной день электрики отдыхают наравне с остальными. А если дом находится на даче или в деревне, лучше познакомиться с электросетью и сопутствующими устройствами досконально.
Вакуумный выключатель: полюса и камеры, привод
В вакуумных выключателях внутренней установки используются литые из эпоксидного компаунда полюса. В выключателях наружной установки – цельнолитые полюса в кремнийорганической изоляции. Полюса комплектуются самыми современными вакуумными камерами, которые специально разработаны и оптимальным образом подходят для использования в литых полюсах.
Контакты вакуумных камер выполнены из специальных легированных сплавов. Горение дуги, которая возникает при разведении контактов при отключении нагрузки, поддерживается металлическими парами за счет испарения электродного материала. Электрическая дуга мягко гасится при естественном переходе тока через ноль, поэтому исключается возможность возникновения перенапряжений при коммутации большинства видов нагрузок.
В вакуумных выключателях применяется универсальный электромагнитный привод. Для удержания выключателя во включенном или отключенном положениях используется энергия мощных постоянных магнитов. Фиксация происходит за счет использования принципа «магнитной защелки», а именно, замыкания магнитной цепи включения или отключения якорем, который механически связан с подвижными контактами вакуумных камер.
Для управления приводом используется электронный блок управления, которым оснащен вакуумный высоковольтный выключатель. Блок управления может быть встроен в корпус выключателя или изготовлен в выносном исполнении. Отключение происходит за счет энергии предварительно заряженных конденсаторов.
В выключателях также применяются пружинные приводы, которые помимо нормированного включения/отключения выключателя обеспечивают возможность ручного включения и отключения.
| Номинальное напряжение, кВ | 10 | 27,5 | 35 | 110 |
| Наибольшее рабочее напряжение, кВ | 12 | 30,5 | 40,5 | 126 |
| Номинальный ток, А | 630–3 150 | 1 600; 2 000 | 1 600 | 2 500; 3 150 |
| Номинальный ток отключения, кА | 20–40 | 25 | 25 | 31,5; 40 |
| Ток термической стойкости , кА (3 с) | 20–40 | 25 | 25 | 31,5; 40 |
| Ток электродинамической стойкости, кА | 52–102 | 64 | 64 | 81; 102 |
| Полное время отключения, мс, не более | 57–70 | 70 | 80 | 47 |
| Собственное время включения, мс, не более | 90–120 | 100 | 80 | 80 |
| Собственное время отключения, мс, не более | 35–55 | 30–55 | 60 | 32 |
| Механический ресурс, циклов ВО | 30 000–100 000 | 30 000 | 25 000 | 10 000 |
| Коммутационный ресурс при номинальных токах, циклов ВО | 30 000–50 000 | 30 000 | 20 000 | 10 000 |
| Коммутационный ресурс при номинальных токах отключения, циклов ВО | 40–100 | 30 | 30 | 25 |
| Масса, кг | 65–285 | 270 | 640 | 1 645 |
У нас вы можете посмотреть полный каталог вакуумных выключателей, а также выбрать продукты, оптимальным образом отвечающие вашим текущим потребностям.
Также рекомендуем ознакомиться с нашими статьями про вакуумную коммутационную аппаратуру и вакуумный выключатель BB.
Чтобы узнать какова цена на вакуумные выключатели в Екатеринбурге, Москве, Новосибирске или других городах Вы можете
Отправить заявку
Способы подключения
Распределение по сети маршевых выключателей зависит для чего вы будете их использовать. Первая схема самая простая в ней сможет разобраться и новичок, она подходит для установки устройств в уже построенном доме. Вторая схема используется при прокладке электросети с установкой распределительных коробок, её можно применять при замене старой проводки либо в строящемся доме.
Схема монтажа устройства с включением в 2-х точках
Есть 4 возможные положения клавиш в 2-х выключателях — в 1-м выключатель замкнут, во 2-м разомкнут и наоборот. В примере, на изображении цепь замкнута, и освещение есть. В этой схеме применяются два проходных выключателя с одной клавишей.

Здесь подключение выполнено через распределительную коробку. Каждое устройство соединено с ней трехжильным кабелем.
Схема включения одного светильника из нескольких мест
Включение лампочки в разных точках удобно при перемещении по длинному коридору. К примеру, в 3-х этажном здании, удобно включать свет на лестнице на каждом этаже.
Эту схему монтируют через перекрестный выключатель. Так же как в вышеописанном примере, их соединяют между собой кабелем с 2-мя жилами.

Для подключения двух переключателей к распаечной коробке потребуется кабель с 3-мя жилами, для использования перекрестного — нужно приготовить два двухжильных кабеля.
Подобным образом собирают схему включения осветительных приборов из боле чем 4-х мест. Крайние приборы в системе – проходные выключатели, а между ними устанавливают перекрестные устройства.
Схема включения нескольких ламп из разных мест
Иногда нужно включать несколько осветительных устройств из разных мест. Для сборки этой схемы нужно подготовить два 2-х клавишных проходных выключателя. Их подключают 2-мя 2-х жильными проводами.
Можно подключать через распредкоробку, но коробка потребуется большая, в нее нужно уложить 8 соединений. Первый выключатель включают в сеть 2-х и 3-х жильным проводом, а для подключения второго – потребуется два 3-х жильных кабеля.

Эта схема позволяет включать независимо 2 отдельных осветительных устройства. Их удобно устанавливать возле семейной кровати. Два проходных выключателя с 2-мя клавишами, и еще один – у двери ведущей в спальню. Это позволит включать люстру и местное освещение в любом месте.

Точек включения освещения при необходимости можно добавлять много. К примеру, если в доме есть длинный проход ведущий в несколько помещений можно собрать цепь позволяющую включать 2 отдельные лампы из 4-х мест. Вы так же можете по этим примерам собрать собственную схему подключения с использованием разных проходных выключателей.
Включение проходных выключателей в существующую в доме проводку
Иногда бывает, что нужно сделать независимое управление освещением в уже построенном доме и с уложенной электропроводкой. В этом случае выполнение электромонтажных работ усложняются, так как появляется вероятность повреждения старой проводки в стене. Обязательно купите тестер позволяющий найти кабель в стене, и проверить нет ли его в месте, где вы будете работать.
Перед началом работ не забудьте отключить электроэнергию в доме.
При монтаже один переключатель допустимо разместить на месте ранее стоящего обычного выключателя. Для установки 2-го устройства потребуется подготовить место. После этого подгадывают штробу, соединяющую два устройства. В ней укладывают 3-х жильный провод и замазывают его шпаклевкой.
Желательно сфотографировать место прокладки, чтобы впоследствии случайно не повредить кабель.
Одну жилу кабеля с 3 проводами, идущего от 2-го переключателя, присоединяют к кабелю, проложенному от распределительной коробки к 1-му выключателю. Дополнительный провод допустимо расположить в кабель-канале или использовать пустоты, имеющиеся в пластиковом плинтусе, это позволит стену не штробить.
Установку выключателей с 2-мя клавишами на два направления провести сложнее. Еще больше проводов придется добавить при монтаже 3-х выключателей. Но при желании всё это сделать возможно, используя вышеприведенные схемы подключения.
Правила выполнения монтажа в новом доме
В этом случае прокладывают проводку по дому и монтируют переключатели до начала штукатурных работ. При этом нужно учесть несколько моментов:
- Соединение кабеля нужно производить в распределительных коробках;
- Укладывают провод не ближе 15 см от поверхности потолка;
- Коробки для установки выключателей и распредкоробки устанавливают на алебастр. Провод, проложенный поверх стены, укладывают в гофротрубу;
- Крепить провод нужно дюбель-хомутами подходящего размера.
Схемы электрические принципиальные работы выключателей
Назначение схемы управления:
- оперативное включение и отключение выключателя;
- блокирование против повторения операций включения и отключения выключателя, когда команда на включение остается поданной после автоматического отключения;
- сигнализация положения выключателя с помощью коммутирующих контактов для внешних вспомогательных цепей и для цепей контроля.
Описание работы схемы
Подготовка схемы к включению
Для подготовки схемы к включению подается переменное оперативное напряжение или постоянное (выпрямленное) на клеммы ХТ:26 и ХТ:27 (цепи мотор-редуктора заводки пружины включения). Мотор-редуктор взводит пружину включения. После завершения взвода срабатывают блок-контакты положения привода SQM1,2, размыкая цепь питания мотор-редуктора.
Также при этом срабатывает реле повторения сигнала положения привода KV1 по цепи: клемма ХТ:26, блок-контакт положения привода SQM1-2, диодный мост VD4, обмотка реле блокировки KBS, блок-контакт положения привода SQM2-2, клемма ХТ:27. Реле своими контактами KV1-3 подготавливает цепь включения, контактами KV1-2 подготавливает внешние цепи контроля (РКВ), контактами KV1-1 разрывает цепи блокировки от повторного включения.
Вакуумный выключатель ВВР-10-20/630 Нажмите на картинку для увеличения
Включение выключателя
Для включения, переменное оперативное напряжение или постоянное (выпрямленное) подается на контакты ХТ:23 и ХТ:25, при этом напряжение питания через выпрямитель на диодном мосте VD1 подается на катушку электромагнита включения YAC по цепи: ХТ:23, н.з. контакты реле блокировки KBS, н.о. контакты реле повторения сигнала положения привода KV1.3, н.з. контакты положения выключателя Q6.1, диодный мост VD1, самовосстанавливающийся предохранитель FU1, контакт ХТ:25.
Советуем изучить Экспертный обзор всех существующих вариантов соединения проводов
Электромагнит включения YAC срабатывает, выключатель включается. При включении срабатывают и блок-контакты выключателя Q1…Q10. Блок-контакты Q7.1, Q8.1 подготавливают команду отключения.
Отключение выключателя
Для отключения, переменное оперативное напряжение или постоянное (выпрямленное) подается на контакты ХТ:28 и ХТ:29, при этом напряжение питания через выпрямитель на диодном мосте VD5 подается на катушку электромагнита включения YAТ по цепи: ХТ:28, н.з. контакты положения выключателя Q8.2, диодный мост VD5, самовосстанавливающийся предохранитель FU3, контакт ХТ:29.
Электромагнит отключения YAТ срабатывает и выключатель отключается.
Отключение выключателя также может производиться от токовых электромагнитов YAA1 и YAA2 для схем с дешунтированием или электромагнитом отключения YAV независимого источника питания.
Для отключения выключателя может использоваться конденсатор С3, установленный в схеме выключателя. Конденсатор С3 заряжается после подачи напряжения на контакты 26,27 блока зажимов выключателя. Для отключения выключателя необходимо внешними цепями управления соединить контакт ХТ:32 с контактом ХТ:28 блока зажимов(при этом контакты ХТ:26 И ХТ:29 должны быть объединены в общую цепь). Отключение выключателя произойдет по цепи (+) С3, самовостанавливающийся предохранитель FU2, ХТ:32, ХТ:29, Q7.1, Q8.1, VD5, YAT, ХТ:27(ХТ:29). Для отключения от конденсатора можно использовать и другие электромагниты, установленные в схеме выключателя (кроме токовых).
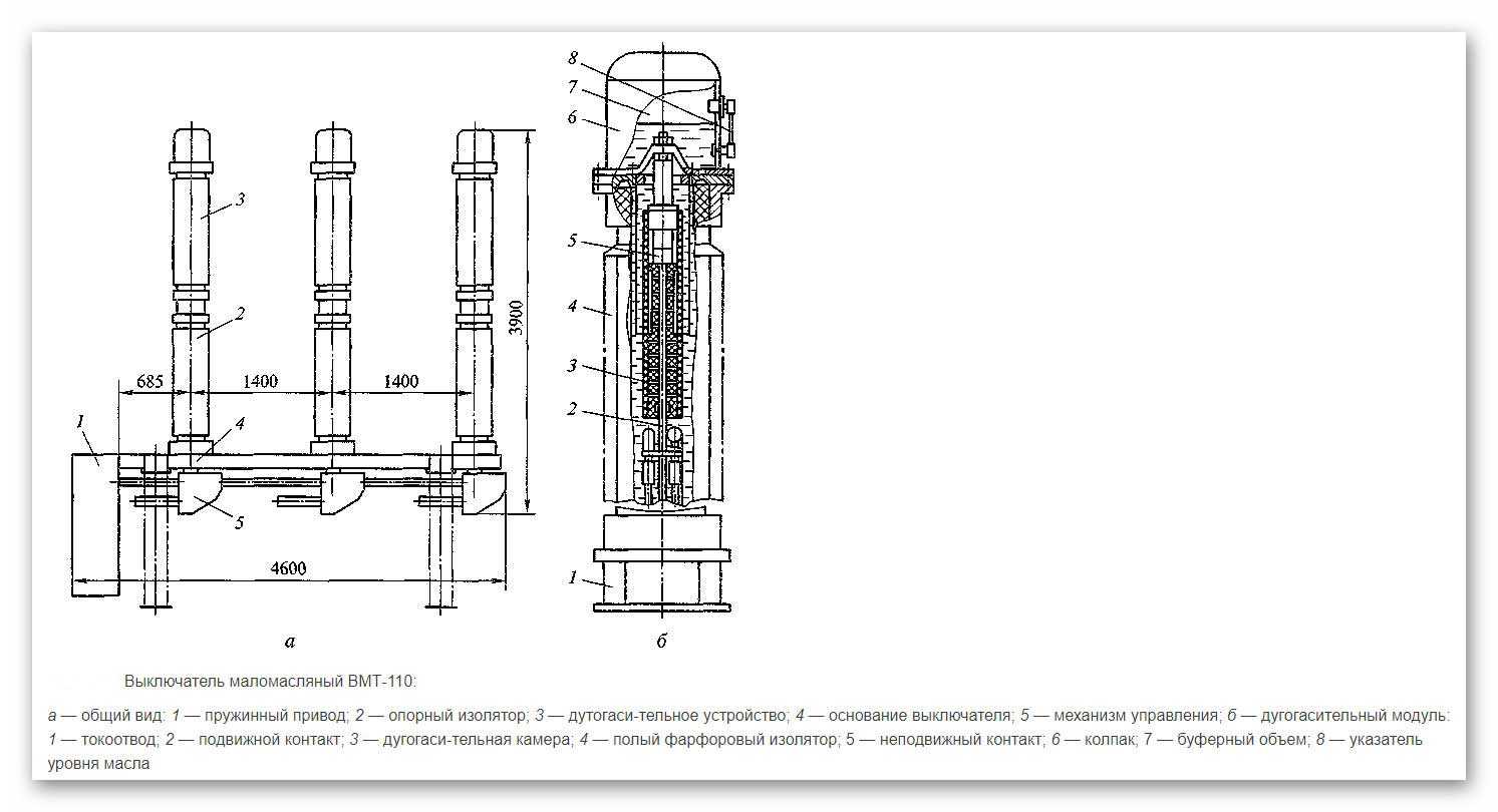
Конструктивные схемы и где применяются масляные выключатели (по сериям)
Различают следующие основные серии МВ:
- ВМП. Это выключатель масляный подвесной. В нем дугогасящие контакты располагаются внутри бака, а рабочие размещены снаружи выключателя. Применяются при больших отключаемых токах в закрытых КРУ 6-10 кВ.
- ВК – выключатель масляный колонковый. Применяется в КРУ выдвижного исполнения.
- ВГМ. Применяется для отключения больших токов. Устройства этого типа имеют по 2 пары рабочих и дугогасительных контактов. Двукратный разрыв тока позволяет обеспечить более эффективное гашение дуги.
- ВМУЭ – колонковый. Применяется в установках 35 кВ.
- ВМТ. Применяется в установках 110 и 220 кВ.


Достоинства системы
Система гашения дуги данного типа имеет ряд особенностей, из-за которых она используется во многих цепях электроснабжения. К достоинствам системы относится следующее:
Высокая эффективность прерывания цепи, что позволяет использовать подобное оборудование в сетях высокого напряжения.
Простота конструкции делает ее надежной и ремонтопригодной
Ремонт масляных выключателей должен проводиться исключительно профессионалами, так как подобное оборудование отвечает за выполнение важной команды от автоматической системы управления или оператора. Также это качество обуславливает относительно небольшую стоимость этого типа оборудования.
Устройство и принцип действия
Вакуумные выключатели предназначены для совершения коммутационных операций в электроснабжающих сетях высокого напряжения. Конструктивно вакуумный выключатель состоит из трех отдельных полюсов или колонок (по одной на каждую фазу). Все колонки устанавливаются на одном приводе посредством опорного изолятора из полимера, фарфора или текстолита. У каждой из них имеются два вывода для подключения ошиновки.
Общий вид вакуумного автоматического выключателя
Устройство вакуумного выключателя.
Из картинки ниже видно, что внутри устройство состоит из двух контактов, подведенных под соответствующие потенциалы полюсов. Один из них выполняется подвижным, второй стационарным, как и в других типах выключателей. Силовые контакты вакуумного выключателя располагаются внутри герметичной камеры, способной сохранять вакуум в течении длительного периода времени (несколько десятков лет). Для чего в состав камеры включаются специальные металлические сплавы и керамические добавки. Именно этот элемент стал камнем преткновения для реализации такого выключателя в 30-е годы прошлого века.
Современные технологии предоставляют возможность сохранения вакуума внутри емкости, в том числе, с учетом динамических нагрузок, которые ей приходится претерпевать во время коммутаций. Для постоянного поддержания состояния сильно разреженной газовой среды, внутри вакуумной камеры, устройство комплектуется сильфонным компонентом. Он исключает возможность проникновения воздуха или другого газа внутрь вакуумной камеры при перемещении подвижного контакта.
Конструкция вакуумного выключателя
Принцип гашения электрической дуги.
При разрыве контактов между поверхностями возникает ионизация пространства. Если в воздушных выключателях с методом электромагнитного дутья эту ионизацию искусственно растягивают на несколько метров, а в элегазовых и масляных выключателях стараются погасить диэлектрическим материалом, то в вакуумных применяется другая технология. Основной принцип основан на том, что в идеальном вакууме отсутствует какое-либо вещество, способное к выделению заряженных частиц. Поэтому в момент разделения контактов, из-за разности потенциалов, единственным источником ионизации являются пары раскаленного металла.

Различные этапы образования плазмы

Начало разведения контактов

Развитие ионизации

Заключительные процессы
Они продолжают движение между контактными поверхностями, но при переходе синусоиды электрического тока через ноль, заряженные частицы утрачивают энергию для ионизации и перемещения, их место быстро занимает пустое пространство с высокой электрической прочностью и дуга рвется. Ионы металлов примыкают к ближайшей поверхности – контактам или стенкам камеры. Такой принцип действия позволяет сократить время на прекращение горения дуги и предоставляет ряд преимуществ, в сравнении с другими типами коммутационных аппаратов. Но чрезмерные коммутационные перенапряжения могут привести к деформации поверхности, что будет препятствовать нормальному замыканию контактов, увеличит переходное сопротивление и вызовет перегрев внутри вакуумной камеры.
Отключение
Для отключения выключателя на обмотку электромагнитного привода разряжается предварительно заряженный отключающий конденсатор блока управления, обеспечивающий протекание через обмотку в течение 15 – 20 миллисекунд тока в направлении, противоположном току включения.
Ток отключения частично размагничивает постоянный магнит, ослабляя силу магнитного притяжения якоря к плоскому магнитопроводу.
Совместное воздействие отключающей пружины и пружины дополнительного поджатия контактов является достаточным для того, чтобы «оторвать» примагниченный якорь от магнитопровода. Возникающий воздушный зазор в приводе резко уменьшает силу притяжения, якорь под действием пружин интенсивно разгоняет и после 2 миллиметров свободного движения рывком увлекает за собой тяговой изолятор и подвижный контакт ВДК.
Усилие стартового рывка на подвижном контакте может достигать величины 2000 Н, что позволяет эффективно разрывать точки микросварок на поверхности контактов, которые могут возникать из-за термического воздействия токов короткого замыкания.
Размыкание контактов происходит с интенсивным ускорением, способствуя достижению максимальной отключающей способности модуля.
По достижении якорем крайнего положения контакты ВДК удерживаются в разомкнутом состоянии усилием отключающей пружины, которое передаётся на подвижный контакт посредством тягового изолятора.
Перемещение якоря передаётся на синхронизирующий вал, поворачивая его в процессе перемещения на угол 44°, для обеспечения индикации состояния модуля, управления вспомогательными контактами и приведения в действие блокировочных механизмов распредустройства.
Правильный монтаж устройства
Перед установкой выключателя вакуумного типа проводится тщательный осмотр всех комплектующих. Необходимо убедиться, что в комплекте имеется все необходимое. Для этого следует воспользоваться списком и чертежами из руководства по эксплуатации.
К монтажу оборудования допускается обученный персонал. Для работы в электроустановке специалисты должны иметь соответствующие разрешения и допуски по электробезопасности. Обычно монтажом подобного оборудования занимаются профильные компании.
Во время монтажа контролируется чистота и отсутствие царапин и неровностей на всех токопроводящих поверхностях. Если имеются загрязнения, они устраняются смоченной в спирте тканью. Пыль и грязь на изолирующих частях и корпусе убираются сухой ветошью.

Перед установкой несколько раз проводится ручное включение и отключение выключателя. Это необходимо, чтобы убедиться в подвижности его механических частей и исключить их заклинивание в рабочем режиме.
Подключение кабельной линии
Для подключения к устройству кабелей используются наконечники. Лучше применять новые наконечники из упаковки. Если используются старые, их необходимо тщательно зачистить. Методика очистки определяется видом материала.
Алюминиевые или медные наконечники без серебряного покрытия зачищаются наждачной бумагой с размером зерна не более 20. Затем они обезжириваются смоченной в спирте тканью.
Коммутационный модуль реклоузера
Наконечники с покрытием из серебра очищаются неворсистой тканью без применения растворителей. Использование наждачной бумаги недопустимо. Есть риск повреждения защитного слоя.
Заземление вакуумного выключателя
Выключатели для стационарной работы подсоединяются к заземлению с помощью винта М12. Для этого на корпусе аппарата предусмотрен соответствующий контакт с пометкой «земля».
Место подключения заземления перед установкой необходимо обезжирить и избавить от прочих загрязнителей
При подборе заземляющей шины следует обратить внимание на ее сечение. Оно выбирается в соответствии с ПУЭ и технической документацией на выключатель

Существуют также выключатели с выкатным элементом. В таких устройствах заземление является составной частью тележки. Перед вводом в эксплуатацию следует убедиться в надежности состыковки контактов такого заземлителя.
Ввод в работу и периодичность осмотра
Вакуумные выключатели управляются с помощью современных цифровых приборов. Работа с ними определенно вызовет затруднения у неподготовленного персонала. Поэтому перед тем как начать нажимать на кнопки, необходимо выяснить их назначение, то есть подробно ознакомиться с руководством по эксплуатации прибора. Там же имеется обозначение на схеме самого выключателя и периферийных устройств.
Аппараты вакуумного типа обладают плохой устойчивостью к токам короткого замыкания. Поэтому после каждого аварийного отключения выключателя по КЗ производится визуальный контроль состояния его контактов. При штатной эксплуатации такой осмотр рекомендуется производить не реже 1 раза в месяц и при нахождении проблем осуществлять технический ремонт.

Главные плюсы и минусы
Сравнение с аналогами масляного и электромагнитного вида позволяет обнаружить много преимуществ:
- все исследования наглядно доказали, что вакуумные модели наиболее простые и надежные при гашении дуги электрического происхождения. Технические особенности предполагают несложное создание образцов для напряжения порядка 6-10 кВт;
- обслуживание и ремонт гораздо легче, чем у других выключателей;
- дистанция беспрепятственного передвижения молекул и электронов в дугогасительной камере достигает нескольких сотен метров. Имеющиеся в вакууме промежутки не способствуют образованию частиц, несущих заряд, что практически сводит к нулю ударную ионизацию. Появление подобных частиц возможно исключительно на поверхностях контактов;
- относительная дороговизна в сравнении с устройствами маломасляного типа составляет всего 5-15%. А электромагнитные модели и вовсе не могут сравниться по этому параметру с вакуумными образцами;
- отсутствие потребности в большом расстоянии между рабочими контактами и уникальная прочность вакуума – причины компактных размеров камер. А это в свою очередь предполагает и незначительный вес;
- основные факторы отличных показателей безопасности – отсутствие потенциальной угрозы утечки масла, бесшумность и незначительные нагрузки динамического характера;
- снижение эксплуатационных расходов – следствие автономного режима работы в среде, не требующей пополнения;
- несколько десятков тысяч допускаемых циклов включения/отключения – гарантия значительного механического ресурса. В сотни раз измеряется количество срабатываний для токов короткого замыкания;
- малый ход контактов, обусловленный минимальным расстоянием между ними, является причиной идеального быстродействия.

Недостатков, причем относительных, гораздо меньше:
- при отключении индуктивных токов маленькой мощности высока вероятность коммутационного перенапряжения;
- необходимость в контактных материалах усложняет процедуру изготовления. Для работы с вакуумом понадобится создание специальных условий;
- на итоговую себестоимость очень влияет потребность больших инвестиций в производство.
Историческая справка
Внешний вид вакуумного выключателя
Впервые вакуумные выключатели упоминаются в начале 30-х годов XX века, когда устройства использовались для отключения относительно слаботочных цепей, работающих под напряжением до 40 кВ. Чтобы получить надежные вакуумные гасители, способные отключать значительные по величине токи в цепях при высоком потенциале, потребовалась целая серия исследований. При их проведении ориентировочно к 1957 году были полностью изучены и систематизированы процессы, наблюдающиеся при высоковольтном горении дуги. Для перехода от опытных образцов, выпускаемых в единичных экземплярах, к серийному производству современных устройств потребовалось еще два долгих десятилетия.
Баковые выключатели, устройство, принцип работы
Баковый выключатель представляет собой один или несколько больших баков с трансформаторным маслом в которых происходит гашение дуги при отключении МВ.
Баковый выключатель конструктивно состоит из наполненных трансформаторным маслом баков, системой контактов и блока управления. Гашение дуги происходит в непосредственно в баке (баках).
Масло в баке помимо гашения дуги выполняет функцию изолирующего вещества.
Такие типы выключателей в основном используются в распределительных установках 35-220 кВ, чаще всего имеют большие габариты и устанавливаются на открытых подстанциях.
Принцип работы их такой же, как и у маломасляных: как уже было отмечено выше, формирование дуги происходит при размыкании контактов, а гашение ее происходит благодаря газомасляной смеси, при это выделяется большая температура и происходит испарение масла.
Баковые выключатели могут иметь как ручной, так и автоматический привод. Во втором случае включение осуществляется при помощи катушки соленоида.
Целесообразность замены на вакуумный
Масляные выключатели наибольшую популярность и распространение получили в XX веке, в XXI веке они все активные вытесняются вакуумными выключателями.
Последние имеют следующие преимущества:
- Значительно меньшие габариты и масса.
- Высокая надежность.
- Простота в обслуживании.
- Гораздо более простое и безопасное включение и отключение.
- Значительно больший ресурс.
Исходя из вышеописанных пунктов становится очевидно, что вакуумные выключатели по всем параметрам выигрывают по сравнению с масляными.
Конечно, заменить целую секцию подстанции, или всю подстанцию с масляных на вакуумные выключатели сложно: это долго и дорого.
Однако на долгой дистанции в несколько десятков лет такое вложение полностью оправдывает себя.
Особенности установки выключателя
Установка вакуумного выключателя выполняется в уже имеющиеся ячейки, шкафы КРУ, остающиеся из-под масляных или воздушных выключателей, или монтируются в новую ячейку на этапе строительства распредустройства, подстанции или электроустановки. Болтовые крепления к металлическим конструкциям должны плотно затягиваться, обеспечивая и неподвижность коммутационного аппарата при интенсивных динамических колебаниях.
Весь процесс должен осуществляться в строгом соответствии с требованиями, как указаний завода изготовителя, так и нормативных документов, регламентирующих работу устройств в соответствующей отрасли. Обязательными для применения в любых цепях являются нормативные величины, устанавливаемые ПУЭ. Где указаны расстояния от токоведущих частей до заземленных конструкций, электрические параметры и прочие требования к установке вакуумных выключателей.
После завершения установки и подключения управленческих цепей к блоку контроля выключателем или приводу, необходимо осуществить ряд манипуляций и проверок:
- Очистить поверхность наружных изоляторов от всевозможных засорителей для исключения возможности протекания токов утечки;
- Проверка работоспособности привода, ручное отключение и соответствие обозначения флажка на нем действительному положению –вкл/выкл;
- Испытание изоляционных свойств смонтированного устройства посредством подачи напряжения промышленной частоты;
- Измерение величины переходного сопротивления между контактами;
В случае хранения вакуумного устройства на складе более двух лет, перед подключением к коммутационным цепям необходимо производить комплекс испытаний, чтобы убедиться в прочности промежутка на случай отключения токов кз.





























